館林市の賃貸アパート・マンション・住宅・土地探しはさくら不動産にお任せください。
さくら不動産
さくら不動産物件検索会社案内スタッフ地域ご案内サイトポリシーお問合せ
物件詳細情報

rent 店舗
おすすめ物件

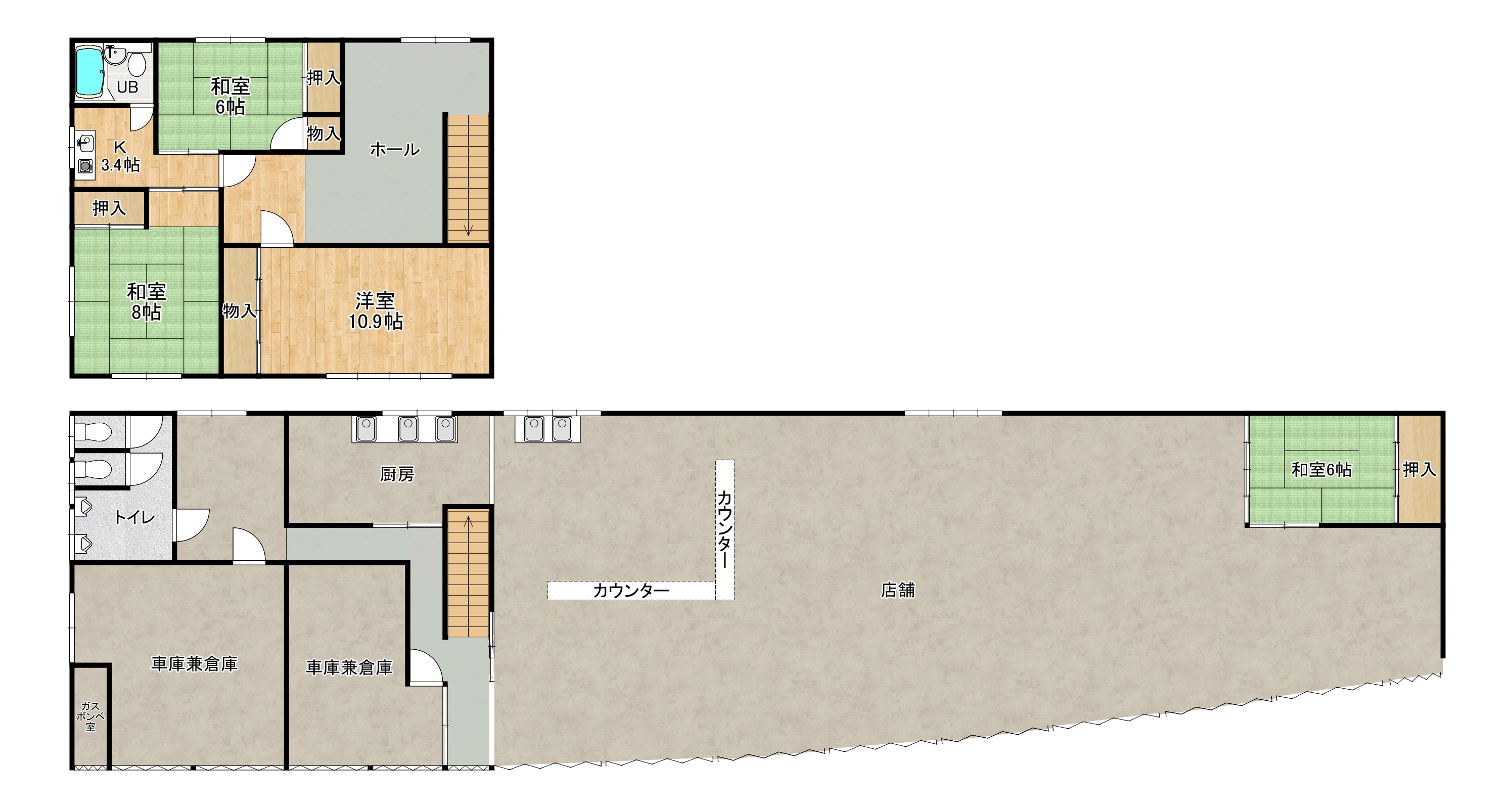
住居兼事務所+店舗です

[rsh609]花山さくらテナント
館林市館林市花山町大袋3035-1 (館林市立第五小学校)

館林の観光名所! つつじが岡公園の入口にあるテナントです! 2Fは住居や事務所や休憩所として使用可!


情報登録日 2025年11月07日   次回更新予定 随時

 

形式 1フロアー
テナント:252.51u/住宅:3K 84u
賃料 27.5万円
敷金/礼金/仲介手数料 1/1/0万円ヶ月
管理費/保険 なし/30000〜
更新料 有(新賃料1ヵ月+事務手数料)
専有面積 272.27u
建物構造 軽量鉄骨造
所在階/建物階 1・2階/2階建
築年月(完成予定) 1968年(築58年)
駐車場 2台/賃料込み
交通手段 館林駅まで約3.5km
引渡し日 即日
家賃保証 要加入
契約期間 3年
取引形態 貸主
その他 残置物は対象ではありません。
3点ユニット・・3点ユニット シャワー・・シャワー 駐車場・・駐車場 コンビニ・・コンビニ
ガス(プロパン)・・ガス(プロパン)
1F テナント
1F テナント
1F テナント
1F テナント
1F テナント 厨房
1F テナント 厨房
1F テナント 小上がり和室
1F テナント 小上がり和室
1F テナント 倉庫兼車庫
1F テナント 倉庫兼車庫
2F 住居兼事務所への階段
2F 住居兼事務所への階段
2F 洋室
2F 洋室
2F 和室
2F 和室
2F 和室
2F 和室
2F 浴室+トイレ
2F 浴室+トイレ
2F キッチン
2F キッチン